Logo_kirsch2_215
Anbau_275

Gartenseite

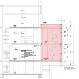
Der mit HPL-Platten verkleidete Holzständerbau nimmt Küche und Essraum im EG sowie Schlafraum und Ankleide im OG auf.

Wohnweg03_275

Eingangsseite

Reihenendhaus
50er Jahre

button button

Das Reihenendhaus aus den sechziger
Jahren wurde im Zuge einer energetischen Sanierung für die Bedürfnisse einer vierköpfigen Familie erneuert und erweitert.
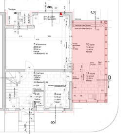
Der wie die Nachbarn farblich zurückhaltend gestaltete Altbau erhielt mit einer rot verkleideten Erweiterung einen neuen Akzent.
 

SchnittDD_275

Schnitt durch Alt- und Neubau (rot)

Grundriss_275

Grundriss EG (Anbau rot)

Logo_kirsch2_90

Kollenrodtstraße 58A, 30163 Hannover
Tel.: +49 (0)511/ 665463,
info@kirsch-architekten.eu